上海“JOLOR迦乐家居”展厅,沉浸式探店体验
JOLOR迦乐家居是一个新兴的本土家具品牌,品牌主理人聚集了众多国际国内的优秀设计师,注重打造多元化的注重细节和材质的家具产品。跟当下各行各业的新生力量一样,JOLOR灵活的结合线上线下销售展示的方式。在拥有几家实体店后,JOLOR邀请了西涛设计工作室更新打造一个不止是家具店的展示艺廊。
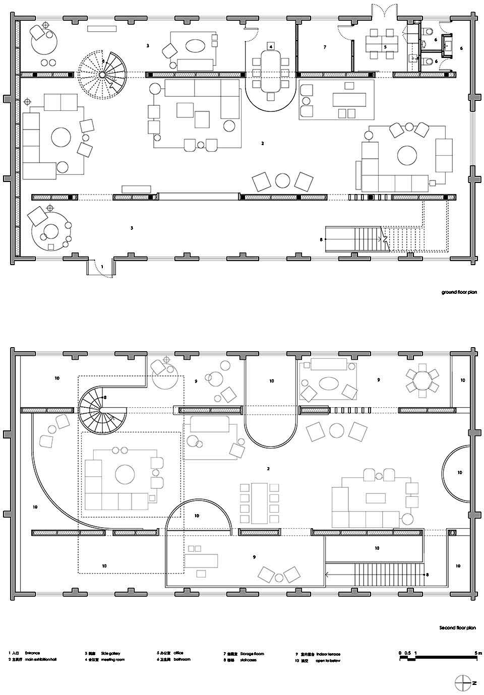
场址是在原上海冶金矿山机械厂区里,一间1958年的小型单层坡顶仓库,占地435平米。这个长方形的空间内部,因为历经修整,建筑原有的金属工业痕迹几近消失,只有三角形的屋架和屋顶上的老虎窗还带有那个时期厂房的特点。

设计师在单一的空间内部,构筑起两片横亘高耸的黑色墙体。将空间切成1:2:1的三进,形成中间展厅和两边侧廊,分出主次区域和高度层次,以适应于不同大小体块的家具陈设场景。两组长达25米的连续墙面,也可以作为举办各种小型展览及活动的背景。


同时为满足更多的展示需求,设计师在两片新建墙体之间搭建出夹层楼板,并在墙身和楼板处设计开凿出一些互相嵌套的圆形或半圆形缺口。楼板从墙上开口处挑出,形成两边侧廊的室内露台,通过两处不同形态的楼梯到达。墙上一些几何形的开口,让厚重的体积感变得生动,并提示入口和路径,空间上下前后形成多种穿透和虚实关系。







沿着楼顶上原有的一个狭小老虎窗,设计师用白色的锥体承接屋顶和引入光线,巧妙形成了天光采集放大装置。阳光从老虎窗射在锥体内侧的斜面上,被反射到空间内。不同的时间段,从圆形旋转楼梯上楼,可以看到阳光被牵引入室内, 在黑色水磨石侧墙上或在正下方的家具展品上投下光斑。暗色的背景里,光束倾洒于整个展陈空间内,精心分散布置的产品仿佛漂浮在深夜海面。以此达到产品被被空间更好的烘托浮现,吸引观者的注意力,提供沉浸式的探店旅程体验。









▼ 平面图

▼ 立、剖面图

项目名称:“JOLOR迦乐家居”零售展厅
项目类型:零售展厅
项目面积: 435平方米
室内面积:740平方米
项目地址:上海市静安区汶水路210号静安新业坊2号楼
设计公司:Atelier tao+c 西涛设计工作室
主要材料:暗色水磨石
空间摄影:夏至
好设计网 www.haoooo.cn 欢迎投稿:infohaoooo@163.com
好设计网 www.haoooo.cn欢迎投稿:infohaoooo@163.com
