北京“崖”云南菜餐厅,现代手法表达云南文化特色
位于北京大方家胡同的“崖”,是C+ Architects为Under Clouds餐饮品牌设计的一间云南菜餐厅。掩映在民居、庙宇和商场写字楼之间,新与旧、传统与现代的气息并存。



在项目设计和实施的整个过程中,建筑师与业主的探讨始终围绕着“云南文化的现代性表达”这一主题展开。从场地的解读到就餐环境的重新定义,从建筑结构加固到室内空间重构,从材料选择到食物呈现,经过一年多时间的打磨,承载了众多参与者丰富情感的“崖”,于2020年元旦诞生。

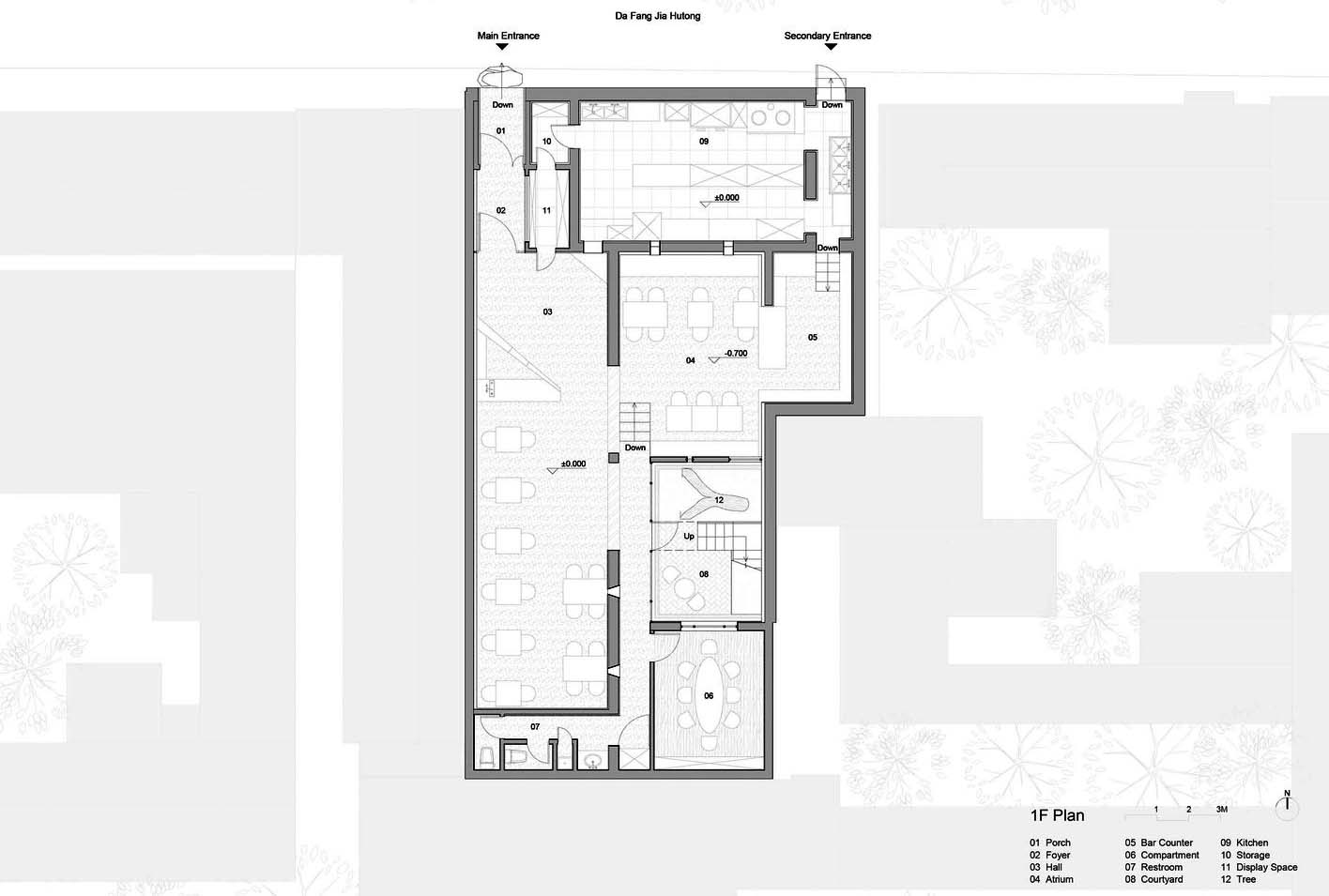
餐厅所处的合院里有一棵逾百年的枣树,被曾经的改造工程围在了室内。考虑到北京传统民居中,树木作为重要的元素,不仅是联系人与场地的纽带,也象征着生命的延续。因此,为了让枣树恢复昔日自然的生长状态,整栋房屋可以自由地呼吸,建筑师开放出一个庭院,并以树为中心重新构建了空间场景序列。




借用“崖”的“高边”之意,设计强调了空间的视觉趣味性。东侧就餐区下沉70公分,与西侧就餐区域及庭院形成了竖向上的互动。通往露台的户外楼梯分成两部分:底部是浅色现浇混凝土台阶基座,和室内高差保持了意向上的统一;上面是一段钢楼梯,与从屋顶伸出的“断桥”一实一虚,皆为让人意想不到的欣赏“崖”的场所。



下沉就餐区上方是T型钢做骨架的“V”字形天窗,避开主要树干生长方向的同时,更把代表云南的强烈、真实且具有力量感的“原风景”引入到餐厅里。就餐者抬头仰望,可以感到近在咫尺的蓝天白云;从屋顶看过去,天窗倒映了天色和树影,像是漂浮的水池,傍晚灯光亮起,又会透出点亮城市的暖光。



“崖”作为一个社交空间,以建筑语言为媒介,展现了人与时间、环境的亲密关系。东侧植入的一整面现代夯土墙,寓意着云南土地的再生。每日变幻的光影在墙上流动,随着时间慢慢沉淀。墙体延伸到室外,与天窗一起将风景自然地引入到建筑内部。室内高差分界线处的洞口像一个取景窗,将庭院和夯土墙的画面完整呈现出来,调动了西侧就餐区客人的视线。



此外,建筑材料的加工和厨师对食材的烹饪方法不尽相同。在保留原始质感的基础上,通过克制的处理让细节变得更加动人,再以现代美学的方式呈现出来。东侧橘黄色的夯土墙和西侧深红色的洞石墙色彩温暖、肌理丰富,将使用了烧杉板、热轧钢板以及黑色水洗石等深色材料的餐厅包裹起来,跳跃与沉稳的色彩相互交织,产生了细腻的层次感,让空间气氛变得幽静深远。


▼ 模型图


▼ 平面图



项目名称:“崖”云南特色餐厅
项目类型:餐饮空间
项目地址:北京市东城区大方家胡同8号
设计公司:C+ Architects
夯土墙二次设计与施工:土上建筑
建筑面积:250平方米
主要材料:现浇混凝土、夯土墙、烧杉板、热轧钢板、黑色水洗石、钢化玻璃、镜面不锈钢
空间摄影:C+ Architects、许晓东
好设计网 www.haoooo.cn 欢迎投稿:infohaoooo@163.com
好设计网 www.haoooo.cn欢迎投稿:infohaoooo@163.com
