雄安市民服务中心OFFICE ZIP,有种绿意悄然邂逅的惊喜

超级番茄设计 / 中国 雄安
2019-07-20

本案位于中国雄安市民服务中心,面积为3775.36 平米。雄安首个装配式办公项目,设计手法上设计师延续了建筑师的设计语言,同时围绕整个项目的定位绿色、现代与智慧的理念开展了深层的设计探索。

1.jpg

2.jpg3.jpg

设计师选择在温润的木质和清冷简约的现代工业风两个主打风格中做嵌入融合,将形色各异的绿植以碎片化环绕的方式呈现,让人有种绿意悄然邂逅的惊喜。

4.jpg

5.jpg

在呈现绿色生态之外,在整个办公区域内,融入了人脸通行、数字化管理、办公会议共享预定以及会议无线投屏等功能,再加上手机摇一摇的开门技术,让人和空间时刻都能进行智能互动。

6.jpg7.jpg

8.jpg

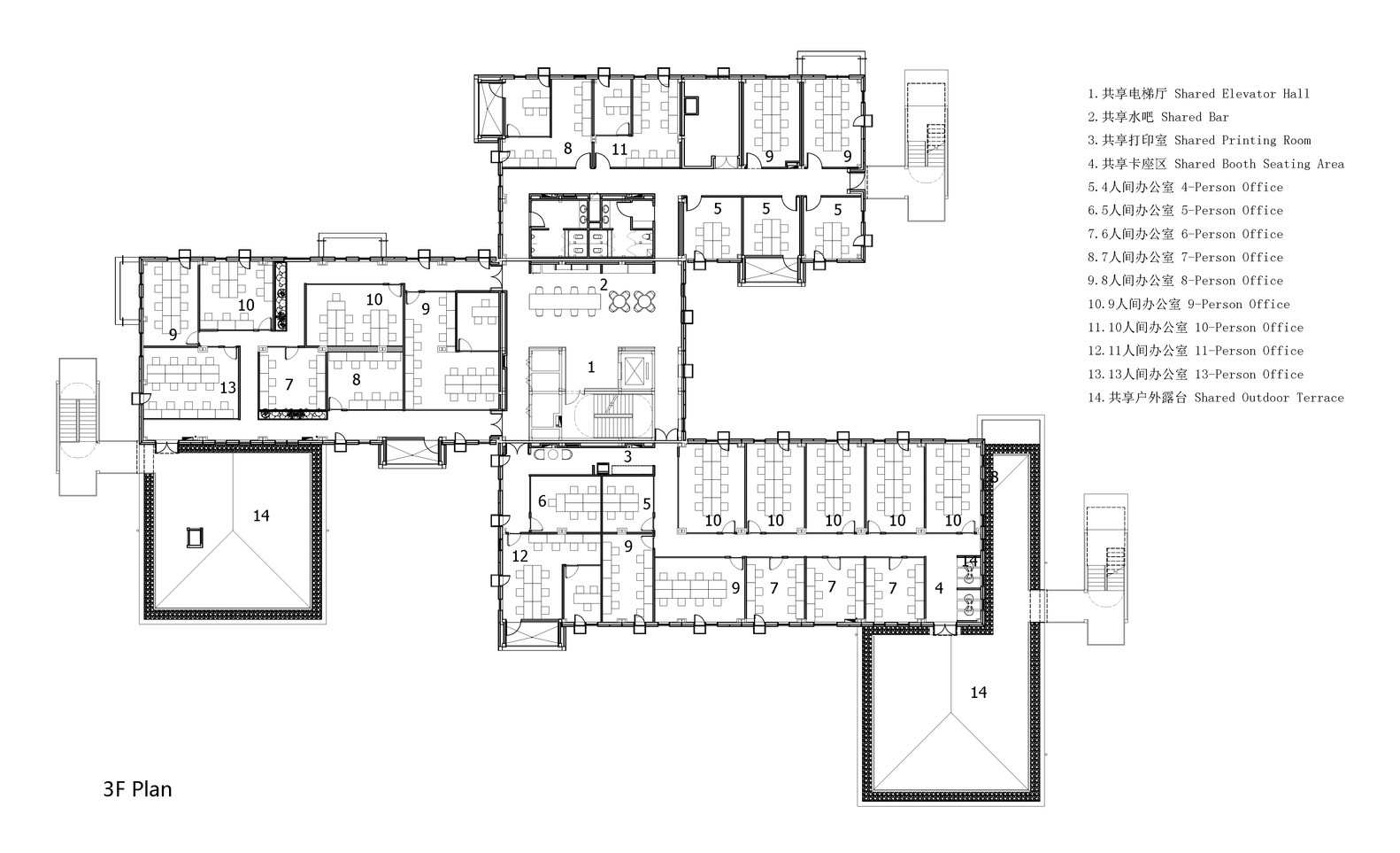
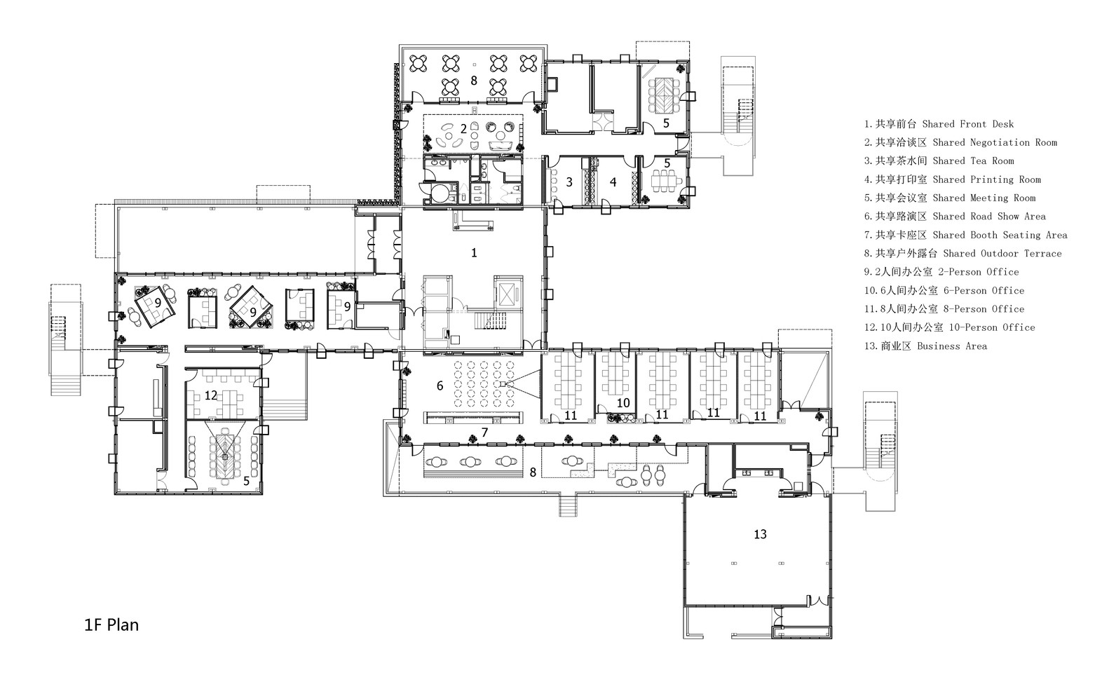
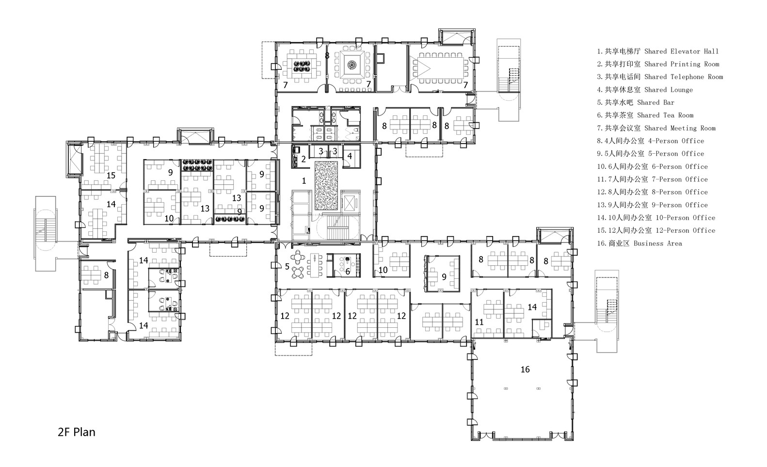
在空间划分上,设计师遵循城市绿色生态美学,充分利用创新技术进行模块化设计,将装配式建造、节能低碳等许多新理念应用到整个空间中去,将整体空间划分成商务区、办公区和休闲区,让一站式的休闲服务和办公完美结合,触达现代人内心的深层需求,从而使整体设计方案在保持高品质的同时做到高效、低成本。

9.jpg

10.jpg11.jpg

12.jpg13.jpg

14.jpg

15.jpg

16.jpg

17.jpg

18.jpg

19.jpg

▼ 平面图

20.jpg

21.jpg

22.jpg

项目名称:雄安市民服务中心OFFICE ZIP

项目类型:办公空间

建筑面积:3225.0平方米

项目位置:中国河北雄安

室内设计:超级番茄设计

主创建筑师:李治飞

设计团队:唐世恒,谭小飞

建筑设计:中国建筑设计研究院

摄影师:罗湘林

委托方:河北雄安市民服务中心有限公司

施工方:中建三局集团有限公司,中国建筑装饰集团有限公司,中建深圳装饰有限公司

项目年份:2018

好设计网  www.haoooo.cn      欢迎投稿:infohaoooo@163.com

好设计网  www.haoooo.cn
欢迎投稿:infohaoooo@163.com