常州观茶庭,旧因新而生动,新因旧而温暖
观茶庭位于常州老城区的一条古街,青果巷。其依河而生,因名仕辈出而扬名。常州市对青果巷进行了整体保护性修复,做到修旧如故。

▲ 主入口街景
此项目三进两院的格局是江南人居生活的基本范式,且尺度宜人,高低层次错落。斑驳的老墙肌理得到了保留,实属难能可贵。

▲ 主入口夜景

▲ 二进入口
唤醒过去
我们认为新置才能真正唤醒过去,新置和旧有可以共处互补,达到一种平衡。同时,以最小的介入换取最大的效果是基本的准则。所以,仅置入两个盒子:1、二进北入口的钢板盒子,意图新旧对比;2、二三进的连廊茶室的木盒子,为了新旧融合。

▲ 新置的钢板盒子

▲ 新置的木盒子
具体来说:以平整的工业钢板与斑驳陆离的老墙呼应,以整洁舒适的橡木地板与历久碳化的穿斗木架呼应。旧因新而生动,新因旧而温暖,与古为新,和而不同。

▲ 白色材质与斑驳老墙相呼应

▲ 温暖橡木与老木架相呼应
直面当下
针对不同空间采取了不同的设计策略。二进一楼因层高较低,自然采光有限,运用质感涂料、水磨石、雾化玻璃等材质营造了丰富且统一的白色氛围,提高了亮度和空间感。

▲ 二进餐厅

▲ 二进餐厅

▲ 白色调改善了一层昏暗低矮的问题

▲ 卫生间
三进空间开敞,连廊茶室如同房中之房,大小对比中更突显老宅的结构和空间美; 二进二楼以原有抬梁木构为主体,辅以主理人的藏品,展现老宅应有的沧桑印记。

▲ 三进休闲区

▲ 三进休闲区

▲ 休闲区陈设

▲ 三进茶室

▲ 如同房中之房

▲ 二楼展厅
开启未来
观茶庭不是一般意义上的休闲场所,而是涵盖茶.食.器的美学空间。它的精神内核正如其英文名Aware Tea,寓意觉察、觉醒,揭示着每个人都有具足的内在,观茶庭即是觉察内在的场所。它可以让人们安住于当下,心无旁骛的喝茶、品食、赏物,和周遭的一切融为一体。我们深知营造场所就像搭建了舞台,未来的人、事、物才是这里活力的所在。

▲ 从沙龙区眺望屋顶与城市

▲ 主人会客的茶席
正如青果巷街区总设计师朱光亚先生在开街仪式引用的话语:我们如此热衷于谈论记忆,因为它们已所剩无几。(We speak so much of memory because there is so little of it left.)我们在此项目尝试着一种可能性,希望人们珍视过往的同时,不是一味的怀古恋旧,而要让旧有换发新生,真实的活在当下,才能历久弥新,接续未来。

▲ 保留老宅应有的样子

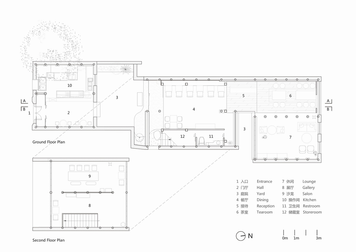
▲ 平面图

▲ 剖面图
类别:商店
建筑面积:180.0 平方米
地址:青果巷57号,常州,江苏,中国
建筑师:南京悦设空间设计
主创建筑师:常辰,吴媛媛
摄影师:闵筱舫
项目年份:2019
好设计网 www.haoooo.cn 欢迎投稿:infohaoooo@163.com
好设计网 www.haoooo.cn欢迎投稿:infohaoooo@163.com
