面朝大海的悬臂式山顶住宅Headland House
总部位于悉尼的Atelier Andy Carson工作室为艺术赞助人Judith Neilson、亿万富翁Kerr Neilson的女儿Beau Neilson以及她的丈夫Jeffrey Simpson设计了这座山顶住宅——Headland House。这对夫妇的项目任务书要求提供一个适应所有突发情况的集优雅与舒适于一体的住所,同时搭配一个两居室的招待所。

这座位于澳大利亚新南威尔士州的住宅由一系列向外凸出的体量组成,面朝海岸线,四周农田环绕,风景优美。这栋房子位于山顶上,占地150英亩,山脊一路将伊拉瓦拉悬崖延伸到大海。站在较高的位置,威勒海滩和格林湾的风光尽收眼底。

场地的一侧是绿色牧场,稀稀落落的奶牛正在吃草,而另一侧则是崎岖的悬崖。业主将场地的东边贡献给社区,公众可以来到山顶欣赏杰林冈到凯马海岸的最后一段旅程。

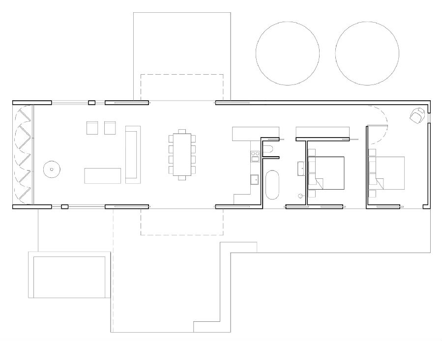
该建筑由一系列环绕庭院的金属体量构成,无论置身于哪一侧都可以欣赏到特定的海洋和农业景观。

在起居空间的一端,全高的玻璃幕墙和阳台面朝海滩。这个空间是一个漏斗状的凸出体量,悬挑在山坡上方,由倾斜的支柱支撑。

Atelier Andy Carson发布的一份声明说:“180度的景观视角和令人叹为观止的环境布局是对场地的回应。设计师并非在整个房子内部构建相同的景观,而是通过取景框创造了不断变化的室外景观。”

中央庭院包含一个游泳池,一块草坪和一个天井区域。天井区域四周环绕着两个体量,包含开放式起居区和卧室。

一条有顶篷的室外通道将公共空间与包含卧室的独立体量连接起来,其中包括位于第二个凸出体量中的一间主人套房。

以庭院为中心,包含四间卧室的主要体量呈L形布局。一个木质的车库和一面坚固的石墙包围着一个有遮挡的户外空间。

邻近招待所的表皮由黑色波纹金属制成,并采取了坡屋顶的形式,能够让人联想到典型的农场棚屋。

坡屋顶招待所的一端是全玻璃幕墙,铜制百叶窗可以调整到任何角度,也可以完全打开以获取最佳的景观视角。

招待所的平面布局很简单,用餐区域沿着两侧的大露台对齐,住户既能够享受到日光浴,也能躲避强劲的海风。

目前世界各地都在建设悬臂式住宅。在日本,Masato Sekiya创建了一个悬挑于河岸上空的度假屋,而在秘鲁,Cheng + Franco Arquitectos设计了一座悬挑于草场马道上空的房子,由三个耐候钢体量构成。


▲ 平面图


▲ 剖面图
建筑师:Atelier Andy Carson
项目团队:Tom Potter, Catherine Bailey-Smith, Alvin Tsang
总承包商:Bellevarde Constructions
结构工程师:Ken Murtagh
景观建筑师:Peter Glass&Associates
勘测员:Allen,Price&Scarratts
好设计网 www.haoooo.cn 欢迎投稿:infohaoooo@163.com
好设计网 www.haoooo.cn欢迎投稿:infohaoooo@163.com
